小平市美園町 C区画

4,880万円

東京都小平市美園町3丁目22-14

西武新宿線「小平」駅徒歩9分

価格
4,880万円
間取り/建物面積
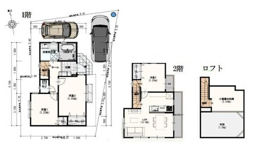
3LDK/72.90㎡
所在地
東京都小平市美園町3丁目22-14
築年
2026年4月(予定)
駐車
有(2台)
交通

西武新宿線小平」駅 徒歩9分

小平市美園町 C区画の基本情報

物件名
小平市美園町 C区画
価格
4,880万円
建物面積
72.90㎡
土地面積
27.79坪(91.89㎡)
築年月
2026年4月(予定)
総戸数
3戸
所在地
東京都小平市美園町3丁目22-14
交通

西武新宿線小平」駅 徒歩9分

小平市美園町 C区画の詳細情報

設備条件
  • 閑静な住宅地
  • 駐車2台可
設備(その他)
    -
駐車場/月額
有(2台)/-
土地権利
所有権
国土法届出
不要
用途地域
第一種低層住居専用
取引態様
仲介
引渡し
2026年4月中旬
備考
徒歩13分の場所に小平市立小平第七小学校があります。駅まで徒歩9分の物件です。地盤調査済みなので、防災面での安心感が増します。ゆったりとしたオープン外構のスペースには花や緑が溢れています。綺麗で清潔感のある室内が新築戸建ての特徴です。個性派の方にオススメのお洒落でカッコいいデザイナーズ物件です。ベタ基礎なので床下の湿気も気になりません。

小平市美園町 C区画のコメント(おすすめポイント)

徒歩13分の場所に小平市立小平第七小学校があります。駅徒歩9分の物件です。多くの方から高いニーズのある、内装もピカピカの新築戸建ての物件です。デザイナーズは、外観や内装にデザインを求める方にオススメです。ゆったりとしたオープン外構のスペースには花や緑が溢れています。室内環境まで左右する基礎は、強靭なベタ基礎となっております。地盤調査済みの物件です。

小平市美園町 C区画で募集中の物件

  1. C区画

    22.05坪 (72.90㎡)

    4,880万円(221.32万円/坪)

周辺施設

  • セブンイレブン 小平美園町3丁目店の画像

    コンビニエンスストア

    セブンイレブン 小平美園町3丁目店

    485m(7分)

  • ファミリーマート 小平大沼町二丁目店の画像

    コンビニエンスストア

    ファミリーマート 小平大沼町二丁目店

    496m(7分)

  • デイリーヤマザキ 東久留米柳窪2丁目店の画像

    コンビニエンスストア

    デイリーヤマザキ 東久留米柳窪2丁目店

    519m(7分)

  • 小平の画像

    小平

    654m(9分)

  • 西友 小平店の画像

    スーパー

    西友 小平店

    840m(11分)

  • 小平市立小平第七小学校の画像

    小学校

    小平市立小平第七小学校

    1003m(13分)

  • スーパーあまいけ 小平店の画像

    スーパー

    スーパーあまいけ 小平店

    1035m(13分)

  • 業務スーパー 滝山店の画像

    スーパー

    業務スーパー 滝山店

    1325m(17分)

  • 小平市立小平第六中学校の画像

    中学校

    小平市立小平第六中学校

    1613m(21分)

近隣の物件

  1. 小平市栄町2丁目

    4LDK (102.26㎡)

    5,180万円

  2. 小平市津田町1丁目

    4LDK (89.01㎡)

    5,790万円

  3. 小平市小川町1丁目

    3LDK (97.29㎡)

    4,490万円

  4. 小平市栄町2丁目

    3LDK (80.32㎡)

    3,590万円

よく見られている物件

  1. 小平市小川町2丁目

    3LDK+S(納戸) (91.52㎡)

    5,890万円

  2. 西東京市芝久保町3丁目

    3LDK (87.77㎡)

    5,598万円

  3. 小平市津田町1丁目

    4LDK (89.01㎡)

    5,790万円

  4. 小平市小川町1丁目

    3LDK (94.74㎡)

    5,280万円

小平市美園町 C区画

お気軽にお問い合わせください

無料お問い合わせ

株式会社セントラル住販

0120350051

午前9時~午後7時

(休:毎週水曜日)