小川町1丁目新築住宅

3,680万円

東京都小平市小川町1丁目249-14

西武拝島線「東大和市」駅徒歩13分

価格
3,680万円
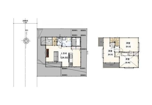
間取り/建物面積
3LDK/70.92㎡
所在地
東京都小平市小川町1丁目249-14
築年
2025年9月(新築)
駐車
有(1台)
交通

西武拝島線東大和市」駅 徒歩13分

小川町1丁目新築住宅の基本情報

物件名
小川町1丁目新築住宅
価格
3,680万円
建物面積
70.92㎡
土地面積
26.23坪(86.73㎡)
築年月
2025年9月(新築)
総戸数
-
所在地
東京都小平市小川町1丁目249-14
交通

西武拝島線東大和市」駅 徒歩13分

小川町1丁目新築住宅の詳細情報

設備条件
  • 閑静な住宅地
設備(その他)
    -
駐車場/月額
有(1台)/-
土地権利
所有権
国土法届出
不要
用途地域
第二種中高層住居専用
取引態様
仲介
引渡し
即時
備考
ぜひ一度見ていただきたい、「小川町1丁目新築住宅」です。近くにはローソン 小平小川町一丁目店(徒歩2分)がありちょっとした買い物に便利です。ベタ基礎なので床下の湿気も気になりません。独特な造りで特徴のあるデザイナーズなら楽しい気分になれます。こちらは清潔感のある新築戸建て物件です。駅まで徒歩13分でアクセス可能です。地盤調査済みなので、防災面での安心感が増します。

小川町1丁目新築住宅のコメント(おすすめポイント)

ぜひ一度見ていただきたい、「小川町1丁目新築住宅」です。近くにはローソン 小平小川町一丁目店(徒歩2分)がありちょっとした買い物に便利です。地盤調査済みなので、防災面での安心感が増します。令和7年9月築の物件です。デザイナーズは、外観や内装にデザインを求める方にオススメです。ベタ基礎なので床下の湿気も気になりません。内外装共に綺麗な新築戸建ての物件はいかがでしょうか。

小川町1丁目新築住宅で募集中の物件

  1. 1号棟

    21.45坪 (70.92㎡)

    3,680万円(171.56万円/坪)

周辺施設

  • ローソン 小平小川町一丁目店の画像

    コンビニエンスストア

    ローソン 小平小川町一丁目店

    118m(2分)

  • 小平市立上宿小学校の画像

    小学校

    小平市立上宿小学校

    590m(8分)

  • セブンイレブン IVYCS武蔵野美術大学店の画像

    コンビニエンスストア

    セブンイレブン IVYCS武蔵野美術大学店

    592m(8分)

  • セブンイレブン 小平小川上宿店の画像

    コンビニエンスストア

    セブンイレブン 小平小川上宿店

    730m(10分)

  • コープらい コープ小川西町店の画像

    スーパー

    コープらい コープ小川西町店

    922m(12分)

  • 小平市立小平第五中学校の画像

    中学校

    小平市立小平第五中学校

    972m(13分)

  • いなげや小平小川橋店の画像

    スーパー

    いなげや小平小川橋店

    1086m(14分)

  • 東大和市の画像

    東大和市

    1110m(14分)

  • スーパーあまいけ東大和店の画像

    スーパー

    スーパーあまいけ東大和店

    1121m(15分)

近隣の物件

  1. 小平市上水新町2丁目

    4LDK (98.12㎡)

    4,277万円

  2. 小平市仲町

    3LDK (74.11㎡)

    4,598万円

  3. 小平市小川町1丁目

    3LDK (95.84㎡)

    4,390万円

  4. 小平市大沼町4丁目

    3LDK (80.32㎡)

    4,490万円

小川町1丁目新築住宅

お気軽にお問い合わせください

無料お問い合わせ

株式会社セントラル住販

0120350051

午前9時~午後7時

(休:毎週水曜日)